118A Alkaff Crescent

S$ 900,000

(S$ 1,161 PSF)

118A Alkaff Crescent, Singapore
2
2
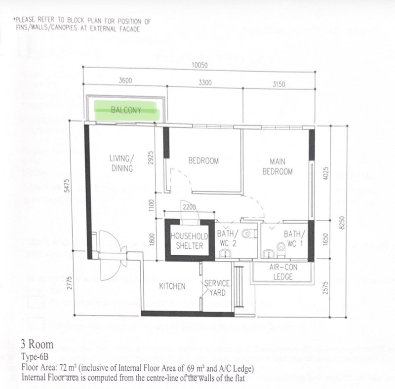
BUILT-UP775 sqft

LAST UPDATED: 26 days ago


Woodleigh’s new township in Bidadari,
especially the Alkaff cluster, is highly sought after by young families.

Newly MOP flat
3A 118A,
High floor,
Inter Corner,
No noon sun,

This Rare Unit comes with (balcony) provide additional lifestyle space that many modern buyers appreciate.

Facing north towards lake and greenery not only just for permanent unblock view but also, brightness and Cooler airflow into the unit.

2024 to 2043 is dominated by Fire energy in the Feng Shui cycle of Period 9. Water not just symbolizes movement of opportunities and career growth,

but also helps to cool and balance excessive Fire energy,
Calm the energy
Stabilize emotions
Create a more peaceful living atmosphere
By Balancing the strong Fire cycle.

Wait no further, arrange for an exclusive viewing

Property Details

Property Type

HDB Apartment

PSF

S$ 1,161 psf

Listed ON

March 11,2026

Developer

Housing & Development Board (HDB)

Furnishing

----

Currently Tenanted

----

Floor Size

775 sqft

Tenure

99-year Leasehold

Listing ID

817557

Floor Level

----

Top

2020

Facilities

Location & Amenities


What's Nearby

Trains (MRT & LRT)
  • WOODLEIGH MRT STATION (NE11)

    MRT

    440 m
  • POTONG PASIR MRT STATION (NE10)

    MRT

    770 m
Bus Stops
  • Bef Bidadari Pk Dr

    Upp Aljunied Rd

    134 m
  • Aft Bidadari Pk Dr

    Upp Aljunied Rd

    144 m
Primary Schools
  • Cedar Primary School

    15 Cedar Avenue

    220 m
  • Maris Stella High School

    25 Mount Vernon Road

    870 m
Secondary Schools
  • Cedar Girls' Secondary School

    1 Cedar Avenue

    300 m
  • Maris Stella High School

    25 Mount Vernon Road

    700 m
International Schools
  • Stamford American International School (woodleigh Campus)

    1 Woodleigh Lane Singapore 357684

    460 m
  • Nexus International School (singapore)

    1 Aljunied Walk Singapore 387293

    1830 m
Supermarkets
  • The Woodleigh Mall (2022)

    Central

    320 m
  • The Poiz[2]

    Central

    860 m
Healthcare
  • Our Woodleigh Family Clinic

    Alkaff Crescent

    140 m
  • The Bidadari Clinic

    Alkaff Crescent

    140 m

Estimated Mortgage

Use our Estimated Mortgage Calculator to quickly estimate your mortgage payments and make informed home-buying decisions.


S$
S$
%
YRS

Estimated Property you can afford:

Estimated Property you can afford:
S$ 0.00 / month
0%
0%
-- --

Estimated loan you can borrow:

Estimated loan you can borrow:
S$ 0.00
0%
0%
-- --

Talk to us to learn more about the projects available and a comprehensive computation that covers your safety net.


Compare the Best Mortgage Home Loan Rates Available in Singapore

Assess home loan interest rates from various banks to make an informed decision when buying building-under-construction (BUC) property. Using $1.5m as the loan package.

S$ 3,319 / month

@ 1.27% Sora, 1st year

S$ 3,319 / month

@ 1.27% Sora, 1st year

S$ 3,335 / month

@ 1.3% Sora, 1st year

S$ 3,346 / month

@ 1.32% Sora, 1st year

S$ 3,363 / month

@ 1.35% Sora, 1st year

S$ 3,363 / month

@ 1.35% Sora, 1st year

S$ 3,363 / month

@ 1.35% Sora, 1st year

Secure Your Spot!

Contact Me Today for Exclusive Access to this Listing


  • DEVELOPER APPOINTED MARKETING TEAM
  • COMPREHENSIVE FLOOR PLANS & SITE MAPS
  • DOWNLOADABLE E-BROCHURE
  • FULL PRICELIST

118A Alkaff Crescent